
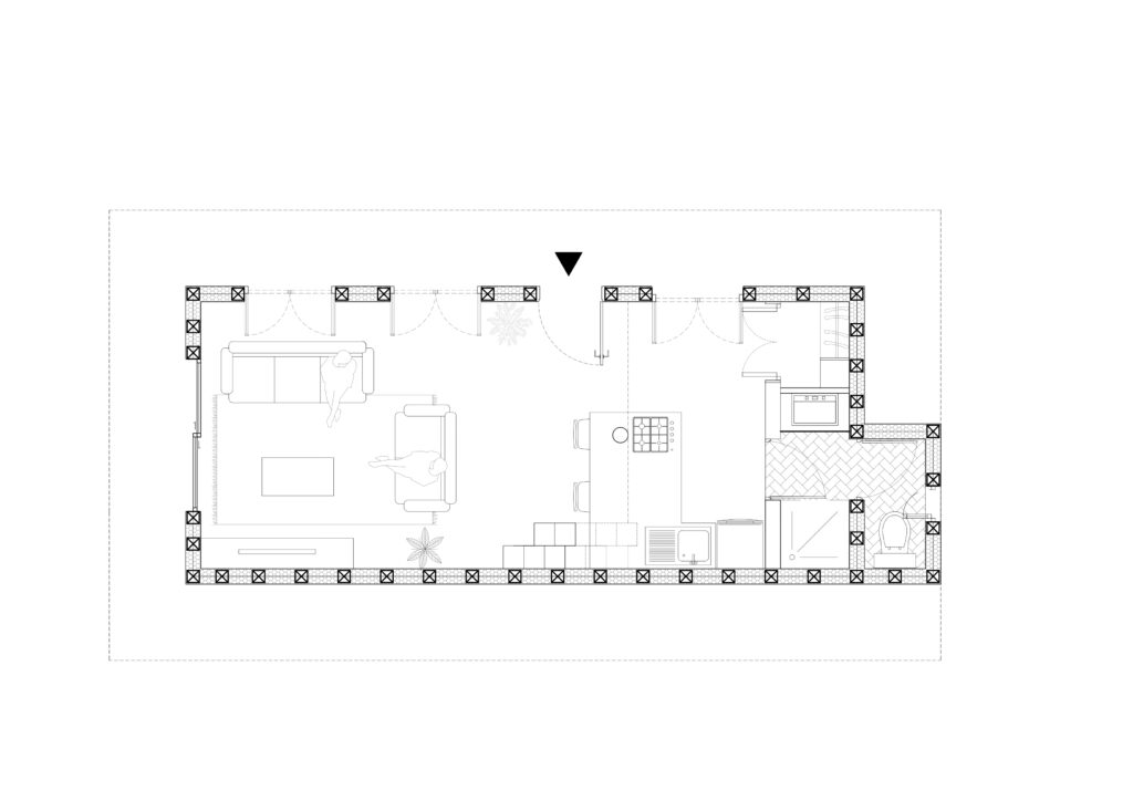
Maison secondaire à Fatouville




Cette maisonnette a été pensée comme un échappatoire au milieu de la nature pour permettre au client de déconnecter de la vie parisienne. Dans le village de Fatouville-Grestain en Normandie, l'architecture à colombages et la toiture en chaume étaient inévitables dans cette zone pour donner tout le cachet à cette maisonnette. Tout un système d'écoulement et de récupération des eaux de pluie a été conçu pour ne pas utiliser les réseaux d'eau courante et rendre cette habitation entièrement autonome.





Contactez-nous pour discuter de votre projet architectural et transformer votre vision en réalité.
Nous contacter