
Appartement neuilly









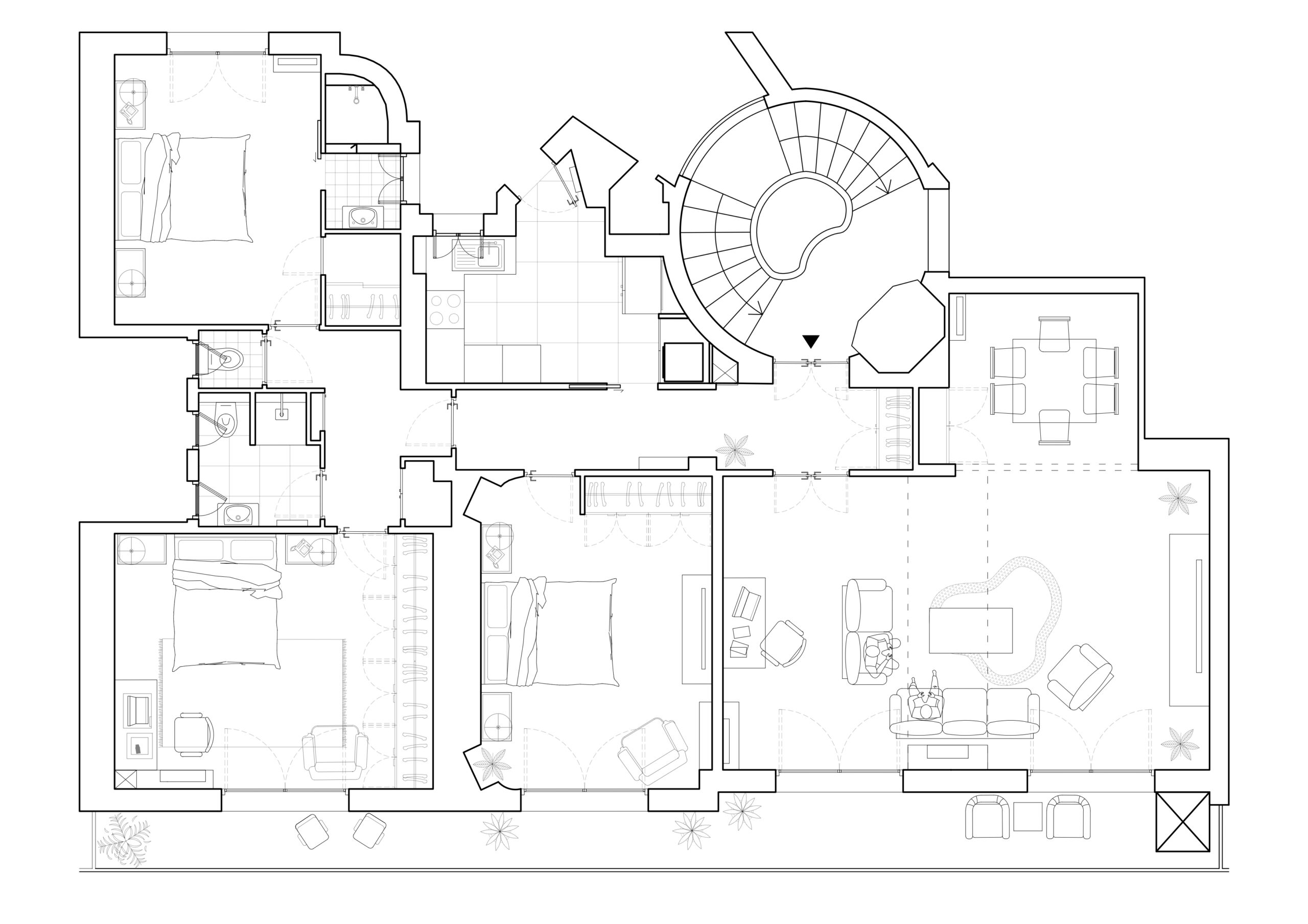
Situé dans la ville de Neuilly-sur-Seine, cet appartement de 230 m² a été pensé entièrement sur mesure pour sortir des standards. Moulures, chêne, béton ciré : chaque matériau a été choisi avec précaution et souci du détail. Des coffrages de radiateurs aux grilles de ventilation, le chêne a permis d'apporter cohérence et harmonie à l'appartement.

Contactez-nous pour discuter de votre projet architectural et transformer votre vision en réalité.
Nous contacter