
Bouin
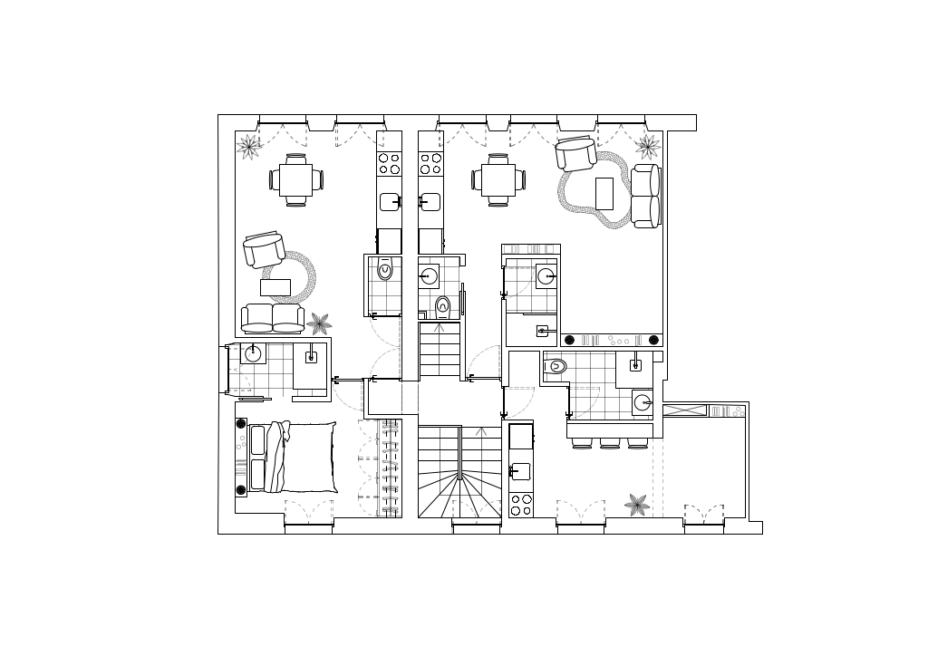
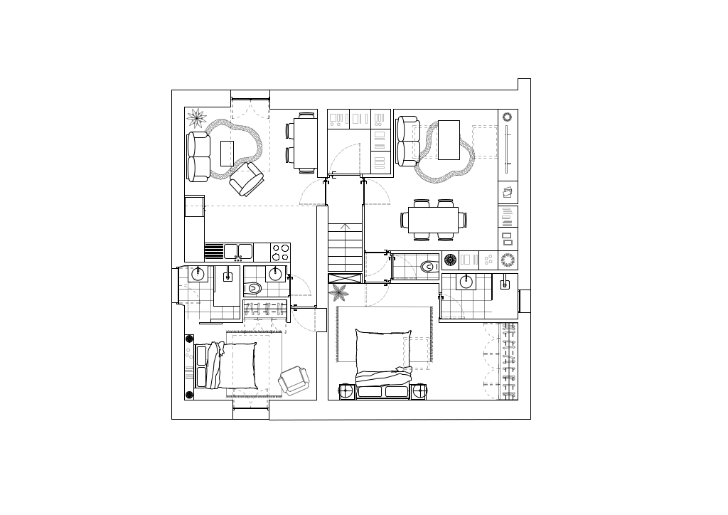
Le projet, situé en plein centre-ville de Rueil-Malmaison, porte sur la réhabilitation des deux derniers niveaux d'un bâtiment ancien, fortement dégradé par des dégâts des eaux non traités. L'enjeu est double : reprendre structurellement les planchers et cloisons tout en conservant au maximum l'existant, et composer avec un chantier contraint par la présence d'occupants (pharmacie, école, locataire). Le programme, composé de petits logements (studios et T2), s'appuie sur une optimisation des surfaces : limitation des cloisonnements, valorisation des volumes dégagés (plafonds cathédrales, faîtages), et intégration de mezzanines.


Contactez-nous pour discuter de votre projet architectural et transformer votre vision en réalité.
Nous contacter