
Colas
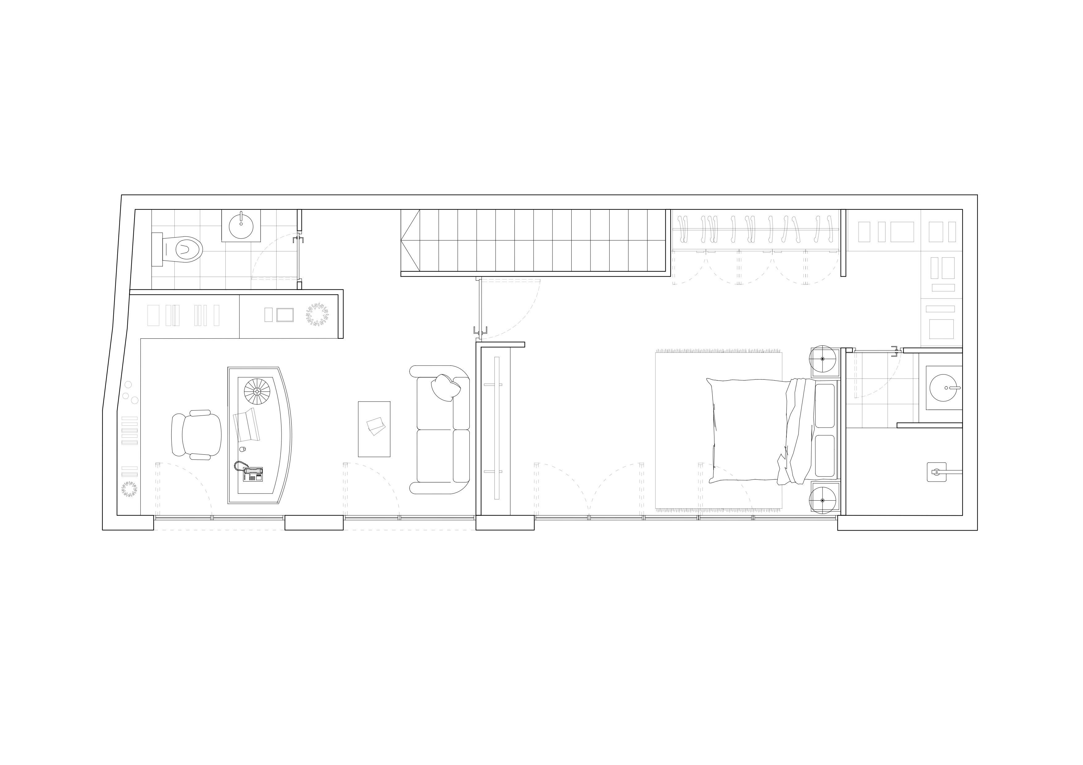
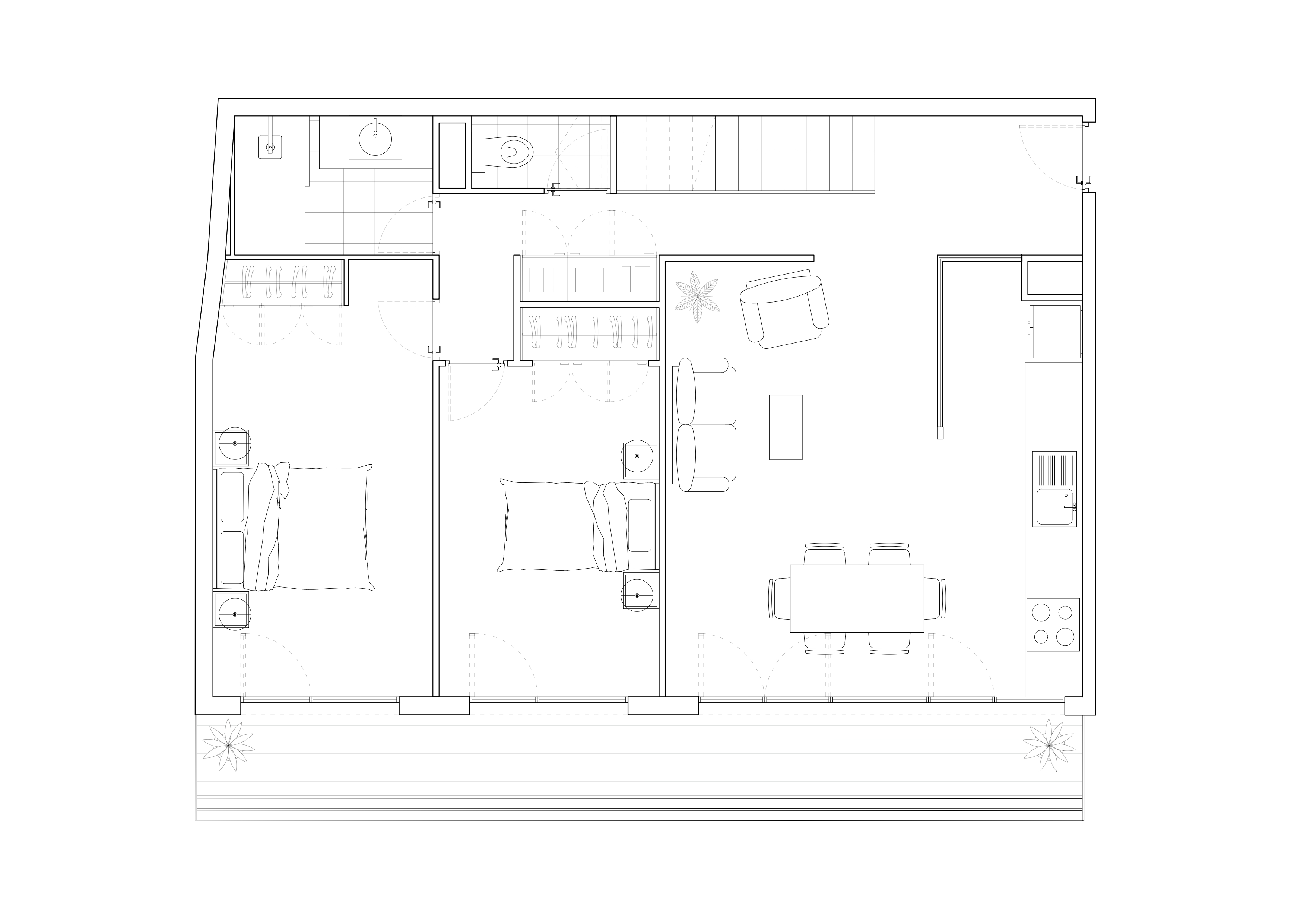
Ce projet vise à agrandir un appartement situé au dernier étage (R+6) d'un immeuble résidentiel avec commerce en rez-de-chaussée, afin d'adapter le logement aux besoins d'une famille avec deux enfants. La surélévation consiste à ajouter environ 44 m² de surface habitable au-dessus de l'appartement existant, en y créant une chambre, un bureau ainsi qu'une terrasse accessible au R+7. Cette intervention préserve l'apport de lumière naturelle sur la terrasse adjacente et mise sur une intégration discrète et harmonieuse, avec une façade ravalée respectant l'esthétique des bâtiments mitoyens.


Contactez-nous pour discuter de votre projet architectural et transformer votre vision en réalité.
Nous contacter