
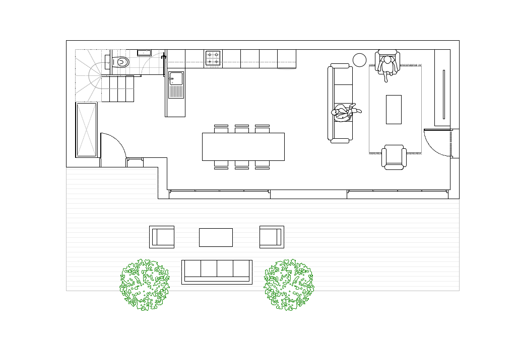
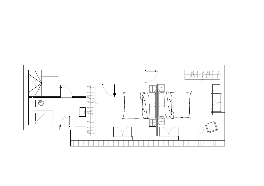
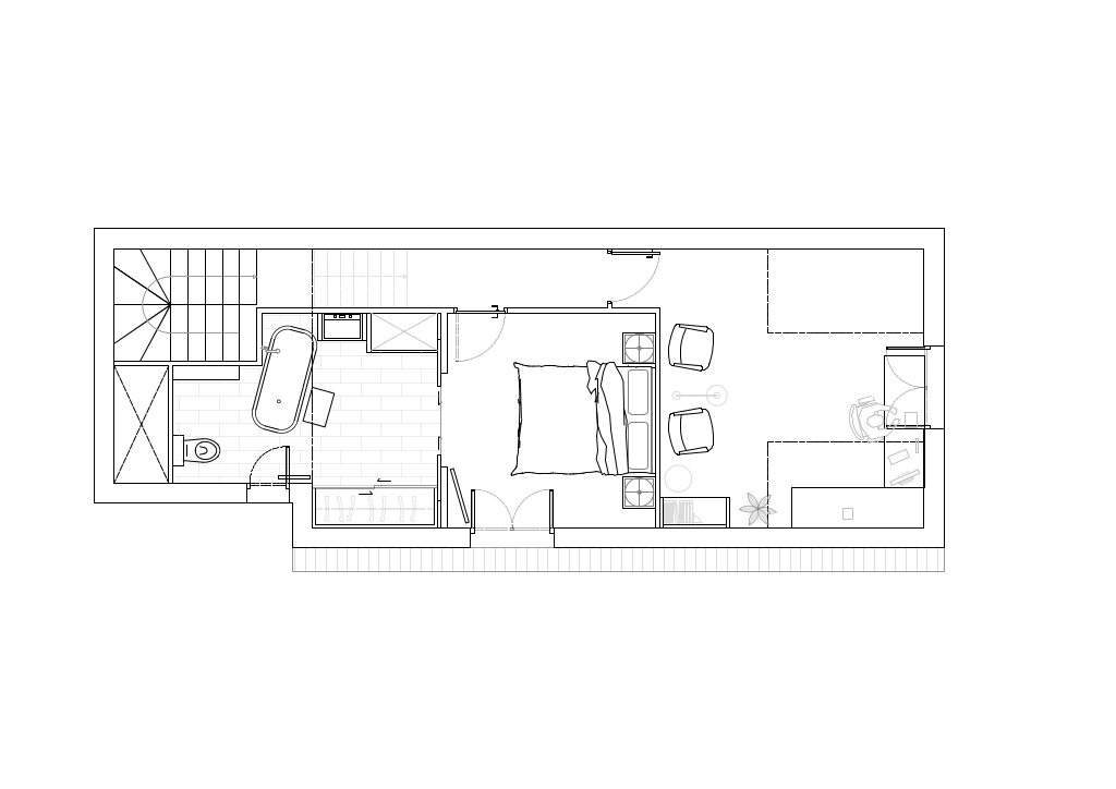
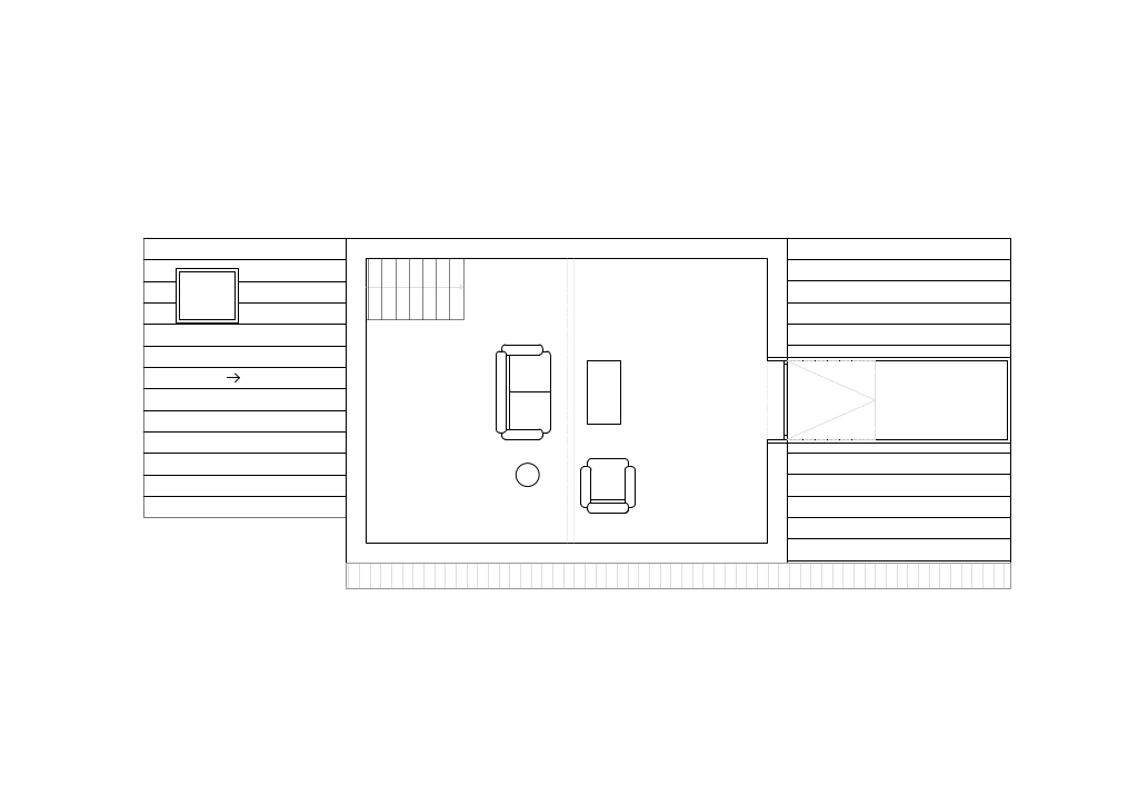
Maison en bois à Vitry Sur Seine










Ce projet porte sur la construction d'une maison individuelle, entièrement en bois. Une méthode de construction durable et rapide. Située à Vitry-sur-Seine, sur un terrain d'angle de deux rues étroites, la construction bois était la meilleure option pour optimiser l'espace à l'intérieur du logement tout en respectant une isolation idéale conforme à la RE 2020. La relation entre l'extérieur et l'intérieur a été travaillée par le biais de grand es ouvertures donnant sur de la végétation, qui fait oublier la proximité directe de la rue.




Contactez-nous pour discuter de votre projet architectural et transformer votre vision en réalité.
Nous contacter