
SARFATI
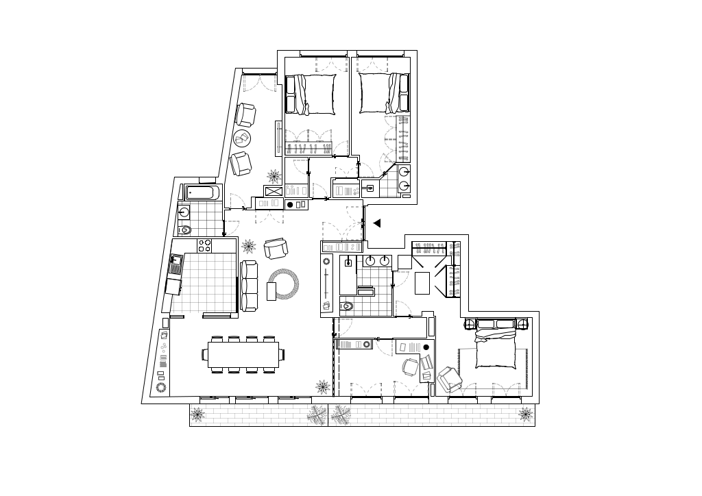
Situé dans le quartier des Batignolles, dans le 17e arrondissement de Paris, ce projet de rénovation consiste en la fusion de deux appartements distincts en une seule unité de vie spacieuse, et cohérente.Un appartement de 42m2 a été transformé en une suite privée complète, comprenant une chambre, un dressing, un bureau et une salle de bain, offrant ainsi une zone de confort au sein du nouveau plan. Cette intervention a permis de redessiner les volumes, d'optimiser la circulation et de créer une ambiance élégante et contemporaine, tout en respectant l'âme parisienne du lieu.

Contactez-nous pour discuter de votre projet architectural et transformer votre vision en réalité.
Nous contacter