
Maison à Dammarie-les-Lys







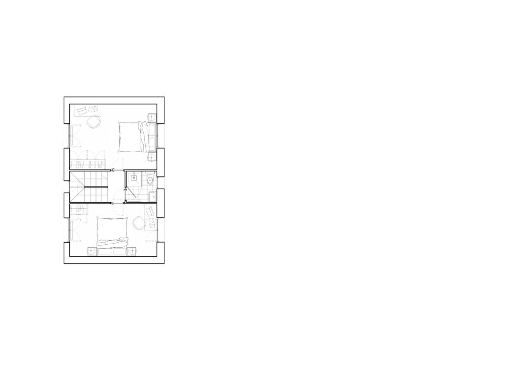
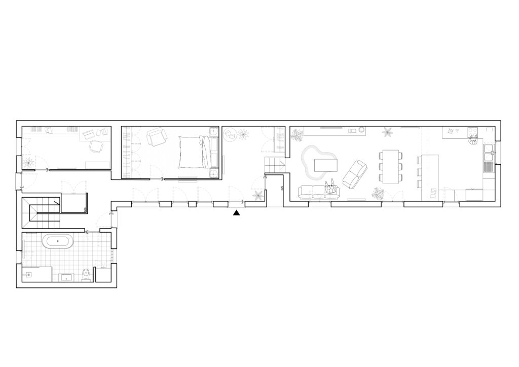
Cette maison atypique présente une forme singulière, fruit de plusieurs extensions réalisées au fil des années. Le projet reflète l'évolution des constructions et des modes d'habitation à travers le temps. Après de nombreuses réflexions sur la répartition des espaces de jour et de nuit, le plan retenu propose des jeux de volumes et une véritable progression dans la découverte du logement.


Contactez-nous pour discuter de votre projet architectural et transformer votre vision en réalité.
Nous contacter