
Maison echarcon












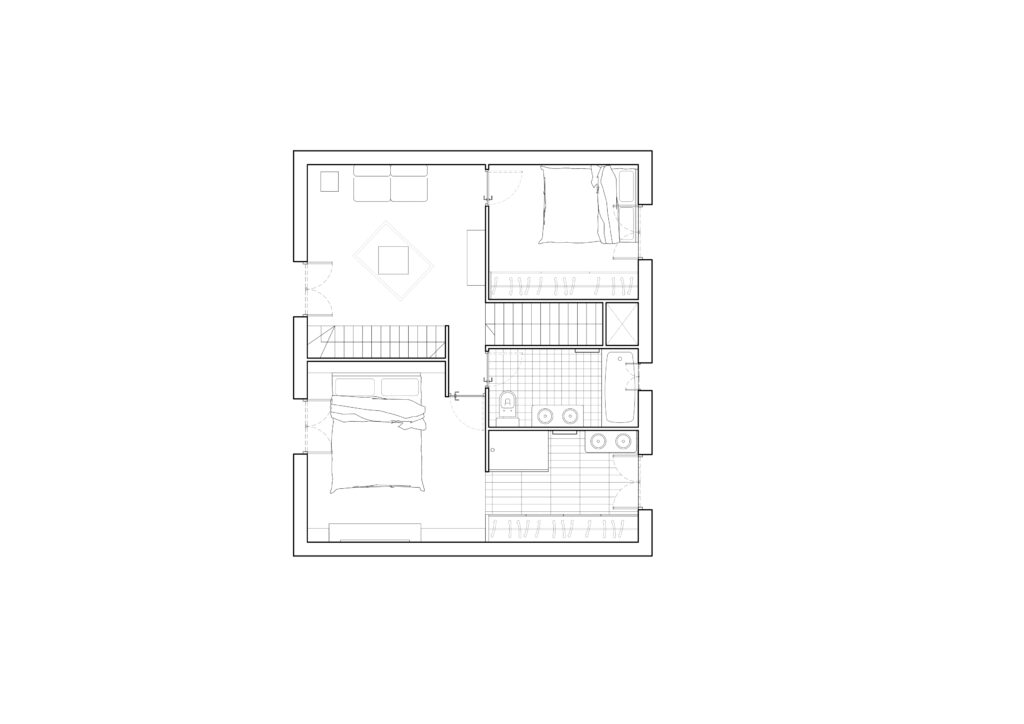
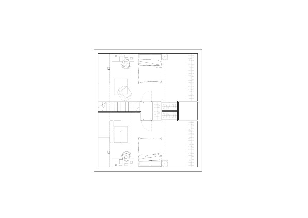
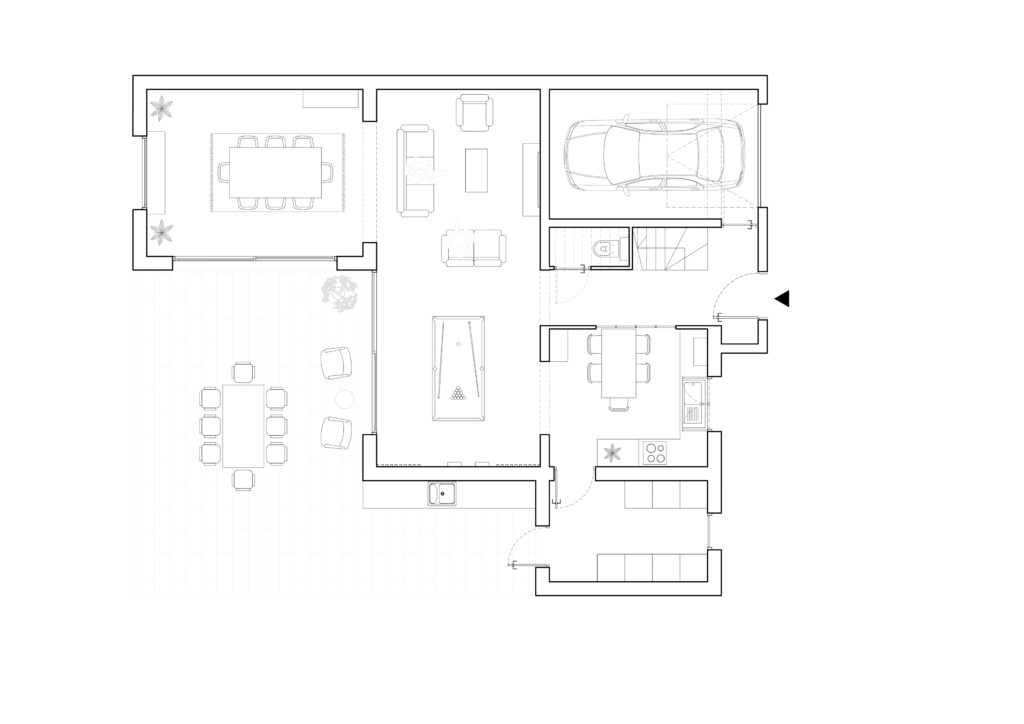
Cette maison, située dans le petit village d'Écharcon en Essonne, a été pensée pour une famille qui souhaitait augmenter et optimiser la surface habitable de leur maison. Plusieurs extensions ont été pensées sur la construction existante, tout en respectant les matériaux et l'architecture de la maison actuelle. L'intérieur, sobre et moderne, laisse place à de grands volumes, aussi bien dans la partie jour que dans la partie nuit. Un plan fonctionnel, comprenant tout ce dont une maison familiale à besoin.



Contactez-nous pour discuter de votre projet architectural et transformer votre vision en réalité.
Nous contacter