
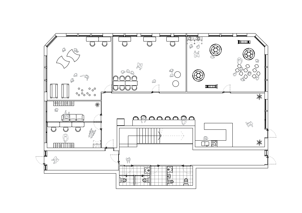
La ludodine
Ce projet transforme un ancien espace de bureaux en un lieu ludique dédié aux enfants, pensé comme un équipement de proximité à vocation collective. L'intervention a nécessité une autorisation de travaux et vise à créer un environnement sécurisé, stimulant et adapté aux tout-petits, tout en répondant aux normes d'accessibilité et de sécurité en vigueur. Une réhabilitation légère mais ciblée pour redonner vie à un lieu désormais ouvert au jeu et à la découverte.

Contactez-nous pour discuter de votre projet architectural et transformer votre vision en réalité.
Nous contacter