
Grange en logement
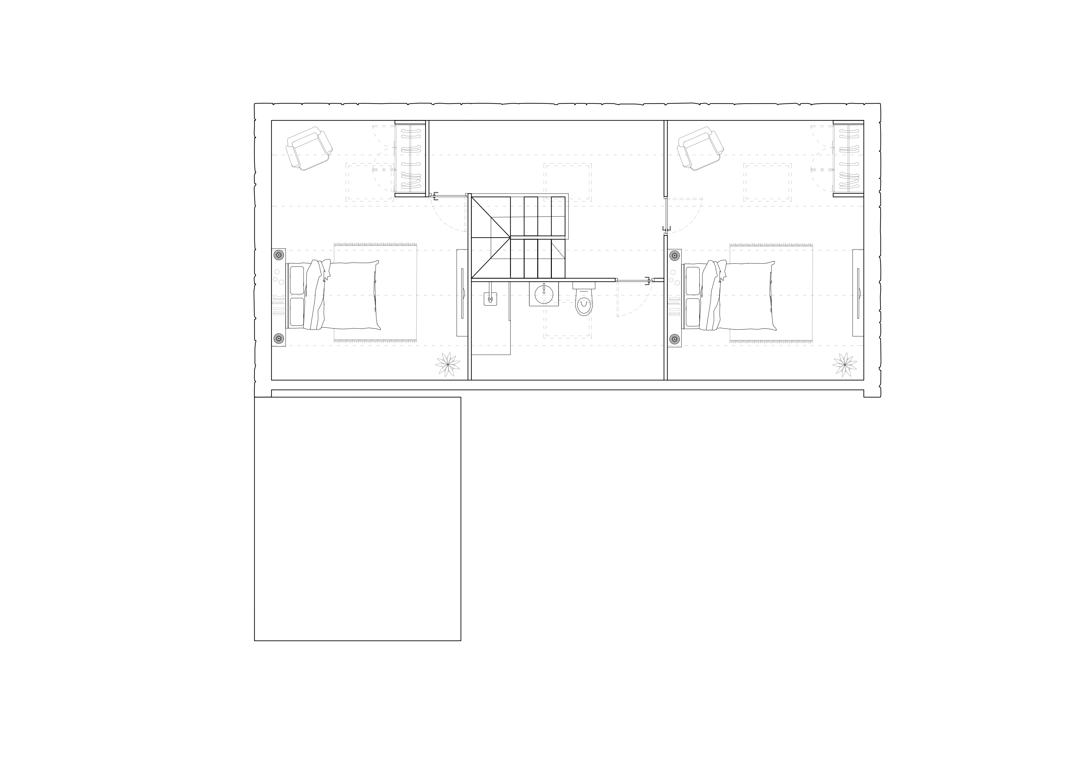
Ce projet est le résultat de la transformation d'une grange en logement. Les problèmes structurels de la grange ont été étudiés afin de conserver un aspect extérieur en pierre authentique une fois le projet réalisé. Le travail en coupe de ce projet a permis la création d'un niveau supplémentaire, avec deux chambres et une salle de bain à l'étage, tout en conservant un espace de vie volumineux au rez-de-chaussée.
_page-0002.jpg)
Contactez-nous pour discuter de votre projet architectural et transformer votre vision en réalité.
Nous contacter