
Aristide BRIAND









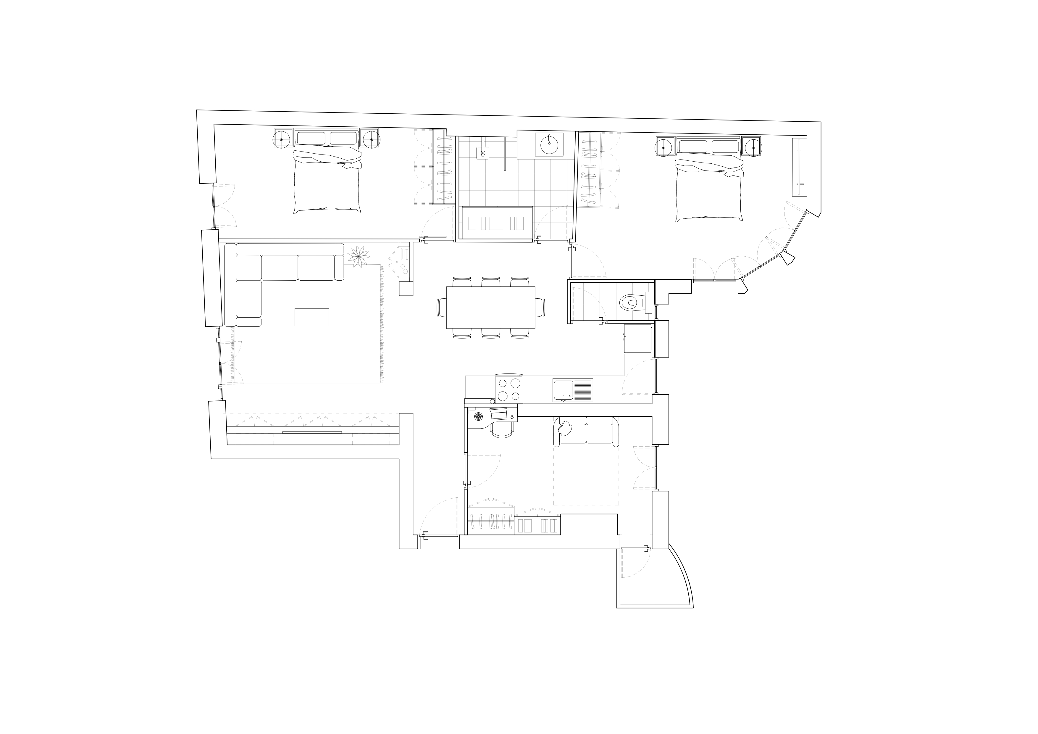
Le projet, situé à Levallois-Perret, concerne la rénovation complète d'un appartement de 81,40 m² au sein d'un immeuble ancien du début du XXᵉ siècle, situé dans un tissu urbain dense à dominante haussmannienne. Le projet présente plusieurs enjeux : reconfigurer l'organisation intérieure pour créer une pièce de vie généreuse et une troisième chambre, tout en conservant la structure existante et les ouvertures principales, et en composant avec la présence de nombreux réseaux techniques à maintenir. Le chantier a nécessité une optimisation rigoureuse des espaces : décloisonnement du séjour et de la cuisine pour créer un espace de vie traversant de 25 m², transformation des anciens dégagements en espaces fonctionnels, et intégration de rangements sur-mesure dans chaque chambre.

Contactez-nous pour discuter de votre projet architectural et transformer votre vision en réalité.
Nous contacter