
Vivespoir








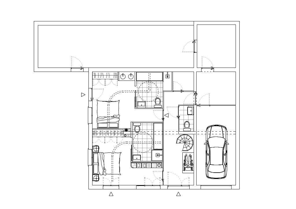
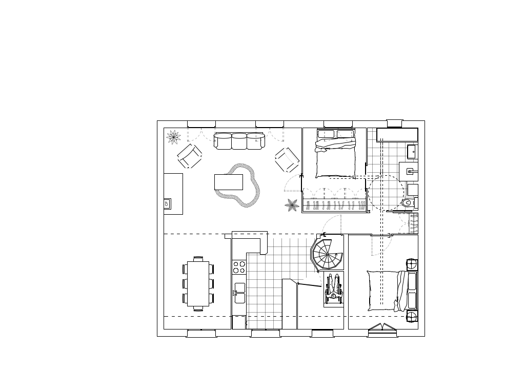
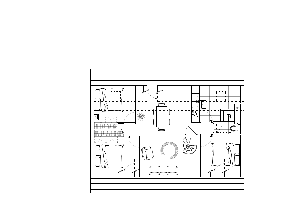
Ce projet, réalisé pour la Fondation Vivespoir, réhabilite le sous-sol d'une maison afin d'en améliorer l'accessibilité et d'accueillir de nouveaux espaces adaptés. Une rampe existante est excavée pour permettre l'installation d'un élévateur PMR, desservant à la fois un studio et une nouvelle cave. Au rez-de-chaussée, l'aménagement est repensé pour créer deux chambres conçues pour des personnes tétraplégiques, avec rails au plafond et circulation optimisée. Une transformation architecturale au service de l'autonomie et de l'accueil inclusif.



Contactez-nous pour discuter de votre projet architectural et transformer votre vision en réalité.
Nous contacter