
Maison à Yerres


.jpg)
.jpg)

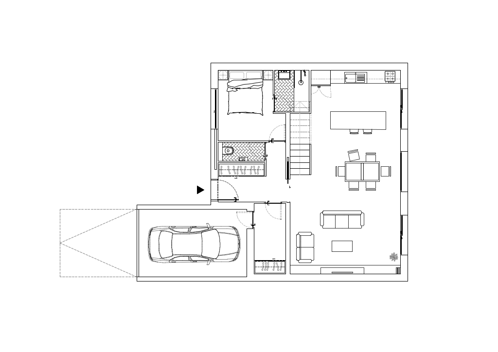
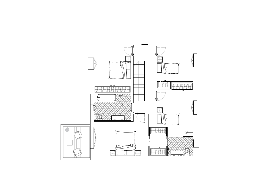
Cette maison moderne est située dans un quartier résidentiel de la ville de Yerres. Un intérieur et un extérieur contemporains pour ce logement destiné à une famille complète. Le côté fonctionnel du plan rend cette maison facile à habiter au quotidien. Une attention particulière a été apportée à l'extérieur de la maison : un jardin arboré, disposant d'une piscine dissimulée sous une terrasse coulissante ainsi qu'un sauna sur mesure en fond de parcelle. L'avant de la maison, plus fonctionnel, laisse place à un stationnement arboré et paysagé.


Contactez-nous pour discuter de votre projet architectural et transformer votre vision en réalité.
Nous contacter